Обяви За нас Контакти
Продава ОФИС
град Пловдив, Младежки Хълм
148 900 €
291 223.09 лв.

(1 551 €, 3 033.49 лв./m2)
Цената е с включено ДДС
История на цената
Коригирана в 17:07 на 23 март, 2025 год.
Обявата е посетена 1560 пъти.
Площ:
96 m2
Етаж:
Партер от 6
Строителство:
Тухла, 2025 г.

Описание на имота:


Номер на оферта 619875

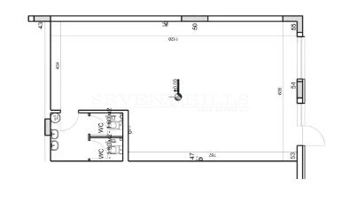
Агенция за недвижими имоти ' Seven Hills ' предлага за продажба офис помещение с площ от 96.94 кв.м, от които застроена площ 79.68. С отделен вход от жилищната част, което позволява използването му като кабинет.

Намира се на партерно ниво в новострояща се сграда в района на Младежки хълм . В близост до Денталния факултет, Медицински университет, Централна гара, бензиностанция и денонощен магазин.

Сградата ще бъде изградена с най-висок клас строителни материали от реномиран строител с дългогодишен опит. Дограмата е от изключително висок клас, пвц с прекъснат термомост, троен стъклопакет, ка стъкла, фасадата е от естетвен камък, а терасите са с висококачествен гранитогрес. В комплекса има зелени площи и място за отдих. Красива и модерна визия в съчетание с качество и уют очакват новите си собственици.

Обектът ще бъде завършен края на 2025-та година.

Има възможност да закупите надземно паркомясто или подземен гараж.

За повече информация и за огледи се обадете на посочения телефонен номер.

Отговорен брокер : Весела Попова
Особености
Тухла
В строеж
За контакт:
0895926677
Брокер:
Весела Попова
0895926677
Още оферти от брокера: Продава | Дава под наем | Купува | Наема
Агенция:
СЕВЪН ХИЛС ИМОТИ
0876222629
СЕВЪН ХИЛС ИМОТИ logo
Медал за прослужено време
В imot.bg от 2018 г.
sevenhills.imot.bg
Адрес:
област Пловдив, гр. Пловдив, гр.Пловдив,ул.Щип 28
ИЗПРАТИ ЗАПИТВАНЕ
ИЗПРАТИ ЗАПИТВАНЕТО

Продава ОФИС
град Пловдив, Младежки Хълм
Обява: 1g172312379574936

148 900 €
291 223.09 лв.
История на цената
(1 551 €, 3 033.49 лв./m2)

Цената е с включено ДДС
ЗАПАЗИ ОБЯВАТА

Местоположение: град Пловдив, Младежки Хълм

Допълнителни данни за имотите в района и сравнение с други райони

Покажи

Период

и 2 месеца

* Средните цени са определени чрез медианна стойност